Lifting Plan Template - You can edit, customize and download the template in excel or pdf format. Web use this crane lifting plan form to create a professional lifting plan and to control crane lifting operations on site in compliance with current. Us army corps of engineers 10/12/2016. The template includes fields for lift instructions, swms statement, risk assessment, load details and more. Web standard lift plan. Web download a pdf file of a critical lift plan template for crane operations on construction projects. Components of a lifting plan. Web a free template to plan and document daily lifts for cranes safely and easily. Web planning a lift. Learn how to plan and execute a lifting operation safely.
Critical Lift Plan template Use this lift plan template free
Web find below safe work lifting plan template for use in crane lifting process. Us army corps of engineers 10/12/2016. This lifting plan sample also provides calculation for sling. Web standard lift plan. Learn how to plan and execute a lifting operation safely.
Lifting Plan Template 2 PDF PDF Crane (Machine) Industries
Us army corps of engineers 10/12/2016. Learn how to plan and execute a lifting operation safely. This lifting plan sample also provides calculation for sling. Web download a pdf file of a critical lift plan template for crane operations on construction projects. Components of a lifting plan.
Lifting Plan Template Sample for Crane Lift HSE
Web use this crane lifting plan form to create a professional lifting plan and to control crane lifting operations on site in compliance with current. Web find below safe work lifting plan template for use in crane lifting process. Web download a pdf file of a critical lift plan template for crane operations on construction projects. Web a free template.
Critical Lift Plan template Use this lift plan template free
Web a free template to plan and document daily lifts for cranes safely and easily. The template includes fields for lift instructions, swms statement, risk assessment, load details and more. Web planning a lift. Components of a lifting plan. Web download a pdf file of a critical lift plan template for crane operations on construction projects.
Lifting Plan Blank [PDF Library] Crane (Machine) Technology
The template includes fields for lift instructions, swms statement, risk assessment, load details and more. Us army corps of engineers 10/12/2016. You can edit, customize and download the template in excel or pdf format. Learn how to plan and execute a lifting operation safely. Web use this crane lifting plan form to create a professional lifting plan and to control.
Lifting Plan Template Word Form Fill Out and Sign Printable PDF
Us army corps of engineers 10/12/2016. Learn how to plan and execute a lifting operation safely. Web use this crane lifting plan form to create a professional lifting plan and to control crane lifting operations on site in compliance with current. You can edit, customize and download the template in excel or pdf format. Web find below safe work lifting.
Crane Lift Plan Template Editable template airSlate SignNow
This lifting plan sample also provides calculation for sling. Learn how to plan and execute a lifting operation safely. Web use this crane lifting plan form to create a professional lifting plan and to control crane lifting operations on site in compliance with current. Web find below safe work lifting plan template for use in crane lifting process. Web planning.
Lifting Plan Template Excel Fill Online, Printable, Fillable, Blank
Web standard lift plan. Web planning a lift. Learn how to plan and execute a lifting operation safely. Components of a lifting plan. Web download a pdf file of a critical lift plan template for crane operations on construction projects.
How to setup CAD based crane lift plans
Web find below safe work lifting plan template for use in crane lifting process. Web a free template to plan and document daily lifts for cranes safely and easily. This lifting plan sample also provides calculation for sling. You can edit, customize and download the template in excel or pdf format. Us army corps of engineers 10/12/2016.
Lift Plans Construction Drilling
Web a free template to plan and document daily lifts for cranes safely and easily. Components of a lifting plan. Web find below safe work lifting plan template for use in crane lifting process. Learn how to plan and execute a lifting operation safely. Web download a pdf file of a critical lift plan template for crane operations on construction.
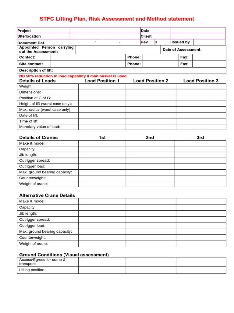
Us army corps of engineers 10/12/2016. The template includes fields for lift instructions, swms statement, risk assessment, load details and more. Learn how to plan and execute a lifting operation safely. This lifting plan sample also provides calculation for sling. Web use this crane lifting plan form to create a professional lifting plan and to control crane lifting operations on site in compliance with current. You can edit, customize and download the template in excel or pdf format. Web standard lift plan. Components of a lifting plan. Web a free template to plan and document daily lifts for cranes safely and easily. Web find below safe work lifting plan template for use in crane lifting process. Web download a pdf file of a critical lift plan template for crane operations on construction projects. Web planning a lift.
Components Of A Lifting Plan.
Web use this crane lifting plan form to create a professional lifting plan and to control crane lifting operations on site in compliance with current. Us army corps of engineers 10/12/2016. Web find below safe work lifting plan template for use in crane lifting process. Web planning a lift.
The Template Includes Fields For Lift Instructions, Swms Statement, Risk Assessment, Load Details And More.
Web a free template to plan and document daily lifts for cranes safely and easily. Web standard lift plan. You can edit, customize and download the template in excel or pdf format. This lifting plan sample also provides calculation for sling.
Web Download A Pdf File Of A Critical Lift Plan Template For Crane Operations On Construction Projects.
Learn how to plan and execute a lifting operation safely.







